Services




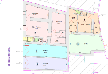
Relevés d'architectes
Réalisation de relevés de bâtiments extérieur et intérieur afin de proposer un rendu en plan 2D des façades (avec ou sans orthophoto), de coupes, des différents niveaux ou encore des toitures.
Possibilité également de rendu du nuage de points 3D, de viewer ou de maquette numérique en 3D.
Relevés topographiques
Il peut s'agir de relevé de corps de rue, de recollement de réseaux, de route, d’ouvrage ou de terrain divers. Cet état des lieux permet aux responsables de travaux (bureaux d’études, entreprises du BTP, paysagistes…) d’étudier et de projeter les travaux à réaliser.


Implantations
EloTopo vous propose également :
la topométrie en milieu industriel et nucléaire (relevé de très haute précision au scanner 3D pour les machines industrielles),
les relevés à des fins archéologiques (relevé de très haute précision au scanner 3D),
l’auscultation d’ouvrage (mesure de très haute précision pour le suivi de déformation d’un ouvrage dans le temps),
la photogrammétrie (établissement de plan à partir de photographies terrestres ou aériennes prises par drone),
le dessin de vos propres relevés 3D (nettoyage du nuage, vectorisation 2D...),
la location de matériel entre professionnels.


Mise en copropriété
Etablissement des plans de mise en copropriété (relevé d'état des lieux, définition des parties communes et privées), calculs des tantièmes généraux et de la répartition des charges.
Ce service vous est proposé en collaboration avec un géomètre-expert .
Autres services
Matérialisation à partir de repères physiques (piquets ou autres) du projet de travaux élaborés sur plan.
Il peut tout aussi bien s'agir d'implantations de terrassement, de bâtiment ou de pieux.


Plan d'exécution
Conception de vos plans d'exécution mentionnant tous les détails techniques nécessaires à la bonne réalisation de votre projet : dimensions, type de matériaux, etc...


Certification Géoréférencement
N° : 25DEG01761-1.1
© 2025. All rights reserved.
Contact
Nous sommes à votre écoute
Téléphone
+33 07 60 22 53 90
contact@elotopo.fr
Suivez moi sur les réseaux :


CREATOPO S.A.R.L. Au capital de 1000€
N° Siret : 99182133100014
21 rue du Centaure 26120 CHABEUIL
e-mail : creatopo@outlook.com
